1
/
of
3
US Fab
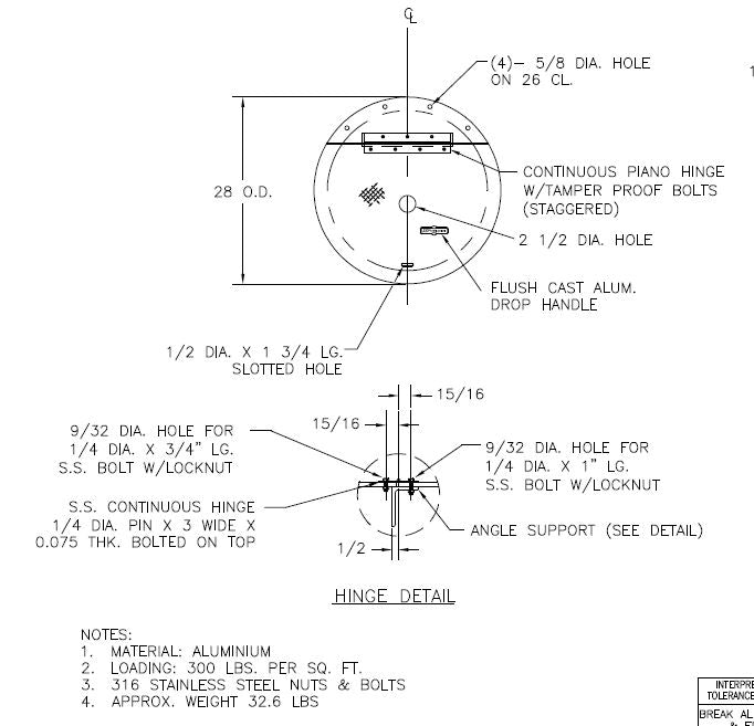
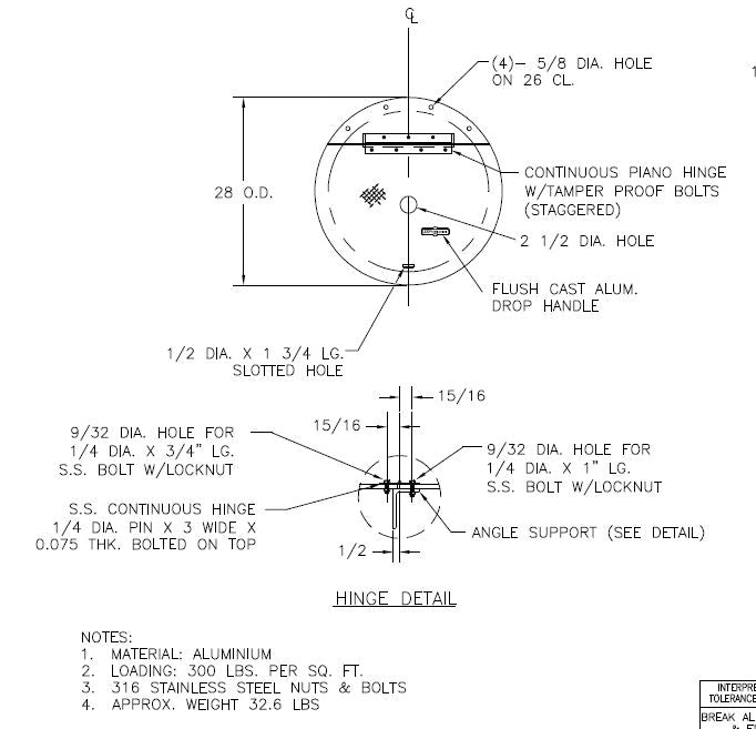
28" Round Cover Hinged for 24" Basin
28" Round Cover Hinged for 24" Basin
Regular price
$458.00 USD
Regular price
Sale price
$458.00 USD
Unit price
/
per
Shipping calculated at checkout.
Couldn't load pickup availability
Stock Item- Ships in 1-3 Days Via Freight Carrier
28" HATCH FOR 24" BASIN
Cover Plate: 1/4-inch (6.4mm) aluminum diamond plate cover reinforced for 300 psf (1465 kg/m2) live load with six 5/8-inch (16mm) diameter holes equally spaced around perimeter for bolting to the existing structure.
Hardware: 316 stainless steel hinges and tamper resistant bolts/lock nuts.
Finish: Cover and integral door are mill finish aluminum.
Installation: Installation shall be in accordance with the manufacturer’s instructions.
Drawing available upon request
Shipping & Returns
Shipping & Returns
Set UPS.
Stock items ship same day!
Share


